The studio to annihilate all studios...

  • Thread starter Thread starter ThomRhodes
  • Start date Start date
i'm not an expert in any way. but my first idea was this.

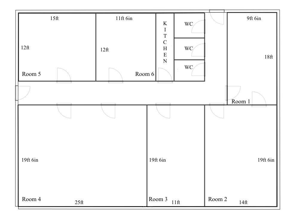
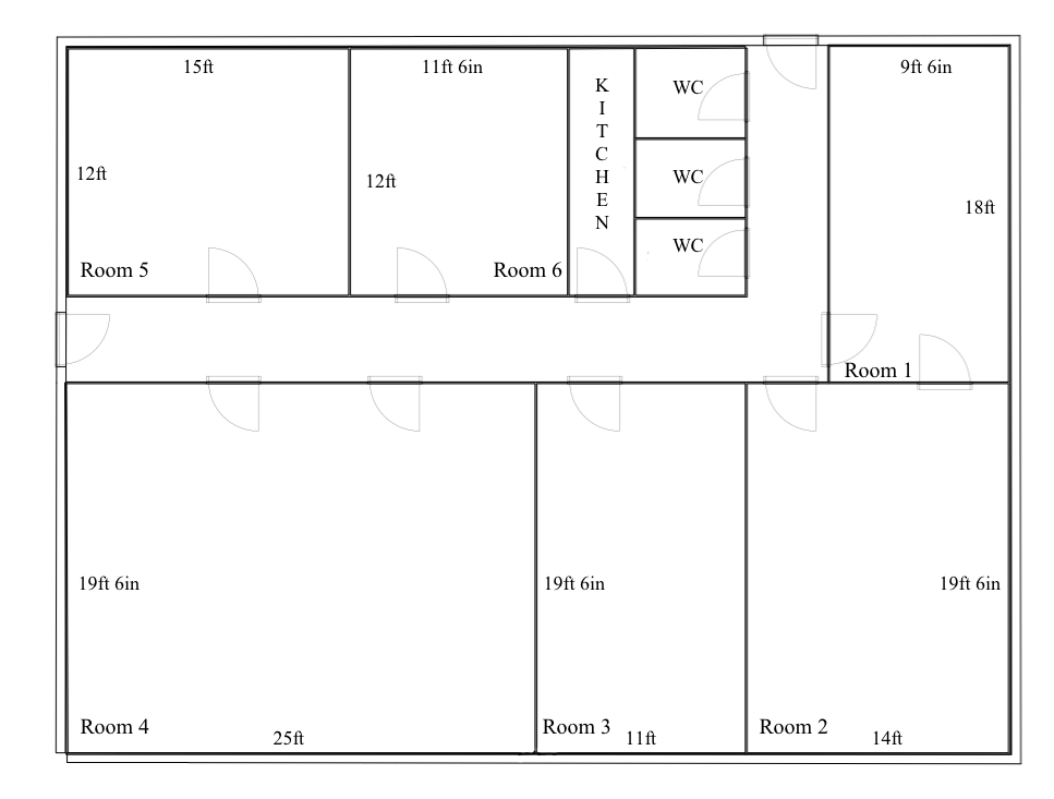
Room 1: Vocal room. or make a vocal booth in it
Room 2: Control room . make window to room 3
Room 3: Live room . make window to room 4
Room 4: Live room for maybe grand piano and/drums?
make room 5 or 6 a guitar/bas amp room. or use one of them for storage. dunno

wierdly narrow kitchen
 
Ya gotta have a live room big enough to set up a ping pong table in ....... ;)
 
Sorry guys, I was carted off to A&E for over-stretching m'groin. :rolleyes:

Thanks to all the posts re: the studio and of course the dog balls related ones. ;)

After a good sleep and reconsideration, I'm going with a Pro Designer.

Thanks again! I'll be sure to post photos when the work begins!

Sounds like a good plan.

Then are you going to record, mix and master yourself?
 
Although your studio may not turn out perfect if you build it yourself, you will gain enormous satisfaction from trying, learn lots and save a heap of money. As long as you get the basics right (ergonomics, sound isolation, acoustics, electrics, and air-con) you can do lots to fine tune a room once its built. You absolutely must avoid parallel walls and ceilings though. Don't get too fearful of getting it wrong, there are many many ways to build a studio. Check out Bill Botrells. One room, loads of sofas and rugs! Or Stephen Lipson. No treatment at all. Works for them.
 
Sounds like a good plan.

Then are you going to record, mix and master yourself?

Hey all! Late replies, been over in the US for a wedding.

I have a producer/technician but yes, I do mixing and mastering myself too. :)
 
Ya gotta have a live room big enough to set up a ping pong table in ....... ;)

;) We're putting a social room somewhere JUST FOR A PING PONG TABLE. Haha!

Impressive!

Thank you!

i'm not an expert in any way. but my first idea was this.

Room 1: Vocal room. or make a vocal booth in it
Room 2: Control room . make window to room 3
Room 3: Live room . make window to room 4
Room 4: Live room for maybe grand piano and/drums?
make room 5 or 6 a guitar/bas amp room. or use one of them for storage. dunno

wierdly narrow kitchen

Thanks, the Kitchen was an after thought last minute build by the sounds of it.

How tall are the rooms?

About 10ft tall, a few are more and a few are less.

Although your studio may not turn out perfect if you build it yourself, you will gain enormous satisfaction from trying, learn lots and save a heap of money. As long as you get the basics right (ergonomics, sound isolation, acoustics, electrics, and air-con) you can do lots to fine tune a room once its built. You absolutely must avoid parallel walls and ceilings though. Don't get too fearful of getting it wrong, there are many many ways to build a studio. Check out Bill Botrells. One room, loads of sofas and rugs! Or Stephen Lipson. No treatment at all. Works for them.

That's what I was thinking; thanks for the advice! I'm going to build my own little vocal room and control room later on in my friends garage so I can work away from the studio so I don't feel like I'm there all of the time. ;)

Note to everyone interested: I have gone with a professional designer but I have also gone with a rough idea of what I want so once I get a chance I shall post a photo of the floor plan.
 
How much is your budget and who is paying for this proposed money pit?

Just curious.

What are you figuring this thing to come in at in terms of $/sq-ft?
 
Of course, I jest.

Since you all appear to be scholars of the musical variety, I thought I'd post this:

I've been heavily - I mean, HEAVILY - researching studios, how they're built, the costs, how to run one etc and I've finally plucked up the courage to break the seal and just go for it. So below I have attached a photo of a very crude floor plan of an industrial office unit I currently have at my disposal. It's 2,000 square feet (give or take) but the block is divided by office rooms (carpeted, mostly thick plasterboard walls with a couple of brick ones etc) I have done 20 odd designs for how I'd layout the studio. I will be using professional builders with over 20 years experience in bespoke studio building, who have said they'll design the layout too at an exuberant cost (which of course I plan on declining the offer).

My question is; if you had this unit what would you put in and where? i.e. where would you put the control room, studio room, live room, the social room, isolation etc etc etc.


I'm basically asking as I have exhausted my ideas over the past few weeks and thought "Why not get a fresh pair of eyes on it!" So I'm doing just that.

Two things you should know:

1. The structure of the rooms cannot be changed; walls built within (to change parallel running walls) or to divide rooms are fine. Anything else is not.

2. Double layered windows put into existing walls are fine (i.e. looking into the studio from control).

So...
What would you do?
:)


View attachment 83000

You can't relocate any of the interior walls?

Exactly what it is then that your designer is designing? Traps and diffusors?

Is there an existing kitchen or not?

Do you have any actual recording experience?

Do you have any actual experience managing a business? What is your annual gross revenue target for break-even? What is your amortization timetable for recovering the initial investment?

What level of gear do you plan to put into this studio? Do you plan on doing post or video post too?

What is your budget for gear? What gear do you already own?

Do you plan on having a room dedicated to a grand piano or a drum room?

Do you have an available sister with a trust fund too?
 
Last edited:
Wifey wouldn't mind a sister wife with a fat bank account.
 
Back
Top