H
HobbyProducer94
New member
Hello everybody 
I'm singer/songwriter and recently I wanted to build home studio to record some of my songs because this was hobby of mine for a long time. I have one spare room where I could build it. Small problem could be small dimensions of the room, and I was wondering if anyone have a suggestions on acoustical treatment of room.
Purpose of the room should be recording vocals, acoustic guitar and also mixing it. I know I can not get the highly professional mix but that is newly discovered hobby of mine and I have strong will to do mixing myself, bought a few courses and got highly addicted to it
My plan is to get bass traps on the every corner of the room, and DIY variant of acoustic panels (with rockwool) that i'll be spreading across the room. I had a plan also of building some wooden diffusors if that could help acoustics of the room (i am a woodworker by profession btw, so any diy variant works for me).
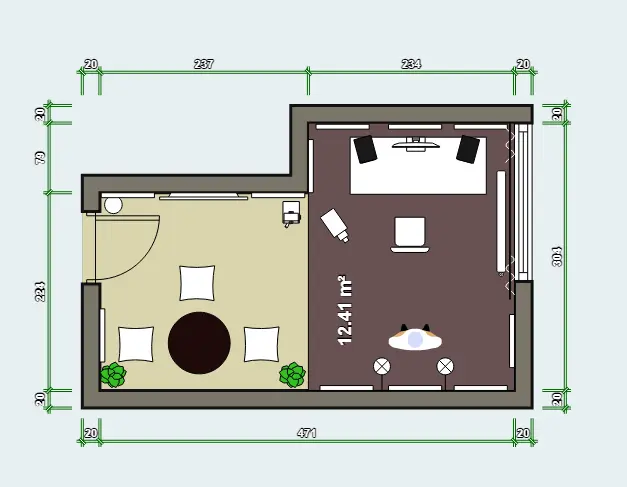
I have a little floor plan with dimensions of room and also furniture that i attached into post. Small white boxes that are drawn into floor plan should represent acoustic panels that i plan to build.
I am most grateful for any suggestions that you may have for me.
Thank you,
Mile
I'm singer/songwriter and recently I wanted to build home studio to record some of my songs because this was hobby of mine for a long time. I have one spare room where I could build it. Small problem could be small dimensions of the room, and I was wondering if anyone have a suggestions on acoustical treatment of room.
Purpose of the room should be recording vocals, acoustic guitar and also mixing it. I know I can not get the highly professional mix but that is newly discovered hobby of mine and I have strong will to do mixing myself, bought a few courses and got highly addicted to it
My plan is to get bass traps on the every corner of the room, and DIY variant of acoustic panels (with rockwool) that i'll be spreading across the room. I had a plan also of building some wooden diffusors if that could help acoustics of the room (i am a woodworker by profession btw, so any diy variant works for me).
I have a little floor plan with dimensions of room and also furniture that i attached into post. Small white boxes that are drawn into floor plan should represent acoustic panels that i plan to build.
I am most grateful for any suggestions that you may have for me.
Thank you,
Mile
.) However, I've heard/read that in really small spaces, it's hard to over-treat, at least for recording, since you will likely get better results making sure the room does not enter into the recording, and rely on good reverb plugins to get ambience back. I confess I did not do a lot of home recording initially, and the room's prime purpose was mixing. That has shifted a lot in the past year plus.