V
vschwa
New member
Hi,
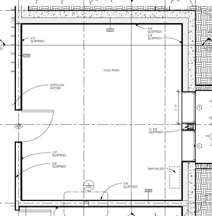
I have an old house that is being lifted in the air and a whole new basement, foundation, and garage are being built and then house will be lowered back down. I have managed to include a dedicated home studio in part of this new basement. Lots of other competing priorities in the house, so the room size i have is what it is...I have read Rod Gervais Home Recording Studio, and my architect has as well, and the design and construction docs are based on this book.
Here are the main goals for me:
- I am not a pro but this will be used to record my band other and projects will include tracking of acoustic guitars, electric guitars, synths, electric bass, drums, vocals, piano, etc..
- However, main priority is to allow me to play guitar/bass/synths at moderate volume, anytime, without bothering other occupants of the house or neighbors too much (doesn't have to be completely silent to them for full on drums, but should be muffled, and near silent for moderate volume on guitar/bass)
- It will be used for mixing on near field monitors, but not mastering (will hand that off to a pro)
- The mixing will eventually be OTB but will start mostly ITB if that matters for design
The drawing is attached and here are the main design elements:
- Room is 15' 3 3/4" Width, 16' 9 1/4 Length, with 8' height
- Slab will be isolated using foam from the rest of the basement slab
- Walls will be 2x6 with alternating studs per Gervais recommendation and filled with insulation (rock wool probably)
- Sheetrocking will be QuietRock and will be 5/8" on outside and 1/2" on inside except on the walls that abut the foundation and those will be 5/8" on inside
- The only holes will be one electric wire coming and external conduit for all electrical and lighting (led) and two for the mini-split heads to connect to the heat pump
- the existing floor above the space will have quite rock layers installed and then filled per Gervais recommendation
- ceiling will be resilient channel hung per Gervais recommendation
- Door will be STC 60
- Windows will have different thickness on each pane, but don't have those details yet
I know that the dimensions and use will need acoustic treatment but that will come later. My main question that I am looking for help with is if this design looks ok to meet the goals?
Thank you!
Steve


I have an old house that is being lifted in the air and a whole new basement, foundation, and garage are being built and then house will be lowered back down. I have managed to include a dedicated home studio in part of this new basement. Lots of other competing priorities in the house, so the room size i have is what it is...I have read Rod Gervais Home Recording Studio, and my architect has as well, and the design and construction docs are based on this book.
Here are the main goals for me:
- I am not a pro but this will be used to record my band other and projects will include tracking of acoustic guitars, electric guitars, synths, electric bass, drums, vocals, piano, etc..
- However, main priority is to allow me to play guitar/bass/synths at moderate volume, anytime, without bothering other occupants of the house or neighbors too much (doesn't have to be completely silent to them for full on drums, but should be muffled, and near silent for moderate volume on guitar/bass)
- It will be used for mixing on near field monitors, but not mastering (will hand that off to a pro)
- The mixing will eventually be OTB but will start mostly ITB if that matters for design
The drawing is attached and here are the main design elements:
- Room is 15' 3 3/4" Width, 16' 9 1/4 Length, with 8' height
- Slab will be isolated using foam from the rest of the basement slab
- Walls will be 2x6 with alternating studs per Gervais recommendation and filled with insulation (rock wool probably)
- Sheetrocking will be QuietRock and will be 5/8" on outside and 1/2" on inside except on the walls that abut the foundation and those will be 5/8" on inside
- The only holes will be one electric wire coming and external conduit for all electrical and lighting (led) and two for the mini-split heads to connect to the heat pump
- the existing floor above the space will have quite rock layers installed and then filled per Gervais recommendation
- ceiling will be resilient channel hung per Gervais recommendation
- Door will be STC 60
- Windows will have different thickness on each pane, but don't have those details yet
I know that the dimensions and use will need acoustic treatment but that will come later. My main question that I am looking for help with is if this design looks ok to meet the goals?
Thank you!
Steve

