i am aware that i wont be able to stop the sound compleatly i just want to stop as much as possible
And how much is "as much as possible" 35db at 125 hz? 110 db at 20 hz? Thats the point. If you don't know how much that is and at what frequency, how the hell are we to know?
We could tell you how to build a rated assembly for 63 db at 50 hz, but if you are recording bands at 110 db......whats the point?
any one with any other ideas
other ideas?

Unless they have a new set of Physics to use, I don't think you understand. You've already been told what it takes. But you refuse to listen to reality.
There are NO magic formulas or products or techniques. Plain and simple, either guess and fail, or use tested and known assemblies, techniques and materials and succeed. But how are you going to do that if you don't tell us what I asked for. Information is key here, so either do it, or go ask someone else for a magic formula.
er.....I think you need to study a bit. Like I said, its relevant. A MASS- AIR-MASS two leaf assembly with a Transmission loss of 35 at 100hz will NOT stop a 55db sound at 30 hz. Low frequency sound is exactly where people go wrong on isolation construction.
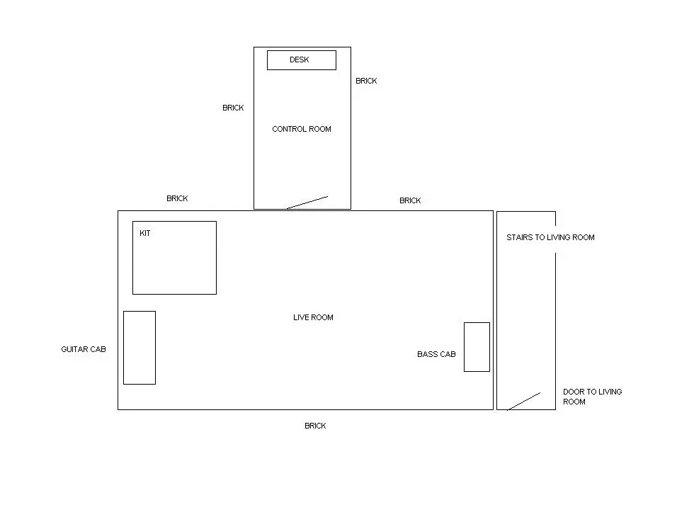
And you have to apply it to ALL facets of the studio. That is if you want real isolation. Whats the point of building ANYTHING if you have an HVAC duct that is common to both upstairs and downstairs and don't seperate them.
Look at it this way. If you construct an isolated room with walls and ceiling that have a transmission loss of 45db at 50 hz, but didn't address your floor that has a resonant coincidence frequency that allows transmission to occur at 35db same frequency, you've just wasted all your time and money. Of course, no one here knows what your isolation target is ...besides "as much as possible" ...which in reality tells us absolutely NOTHING. WHAT are you trying to isolate????? Jet planes, crying babies, trucks, acoustic guitars, flutes, guns?? Maybe I'm missing something here.
fitZ